CM44X变送器 pH ORP基本调试
CM44X变送器+ pH/ORP基本调试
1安装
CM44x共有3种安装方式,如下:
1.1直管道安装

[点击图片放大]
1.2水平管道安装

[[点击图片放大]
1.3墙式安装

[[点击图片放大]
注:竖直管道和水平管道安装需要额外订购安装附件。
2接线
2.1电源接线
CM442电源接线

[[点击图片放大]
CM444/448电源接线

[[点击图片放大]
注:请看清CM44x铭牌是220VAC还是24VDC供电
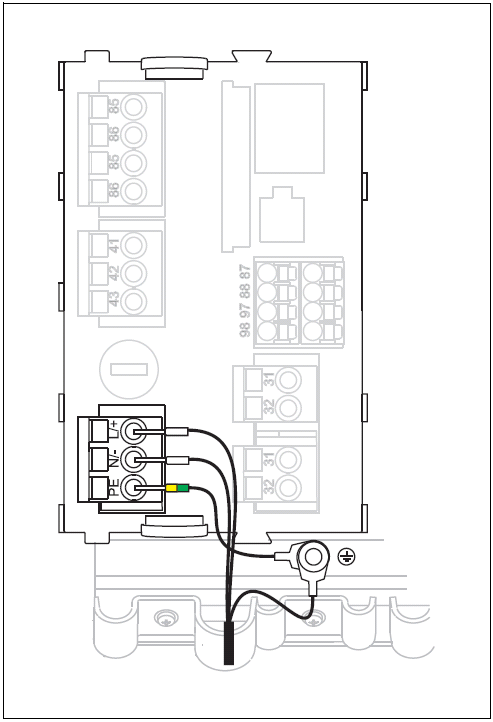
2.2 pH传感器接线

[[点击图片放大]

[[点击图片放大]
1)棕、白、绿、黄四根电缆线分别连接到87 , 88 , 97 , 98号端子。
2)传感器电缆屏蔽层需接地。
3)电流输出接31 , 32端子。电流输出为有源输出。
注:须保证所有的缆塞拧紧、密封。
3按键功能;
按下软键:直接选择菜单

[[点击图片放大]
旋转浏览器:在菜单中移动光标

[[点击图片放大]
按下浏览器:选择功能

[[点击图片放大]
旋转浏览器:改变数值

按下浏览键:接受新数值

[[点击图片放大]
4设置
4.1量程设置
电任公面创出/电流输出xr菜雄下设置范围低值”和“范围高值工。

[点击图片放大]
4.2标准液设置
如果用户使用E+ H原装标准液则无需修改出厂默认设置;否则需进入“菜单/设置/输入/CH1: 1:1 pH玻璃/扩展设置/标定设置/标定液识别”,把出厂默认设置”固定”修改为"手动”, 并在"菜单/设置/输入/CH1: 1:1 pH玻璃/扩展设置/标定设置/标定液x”中输入两个标准液的pH值。
4.3变送器复位
在“菜单/诊断/系统测量/重置”菜单下选择“出厂默认”,复位变送器。

[点击图片放大]
5标定
进入"菜单/标定/pH”选择、"2点标定” ,按照菜单提示完成标定。标定成功后显示斜率和零点,询问是否调整标定数据。标定失败后提示是否再次标定。

[[点击图片放大]
6常见故障代码
故障代码及含义自动显示在测量界面;可进入"菜单/诊断”查看故障代码,按“?”键查看故障含义。

[点击图片放大]
7维护传感器
1 )定期清洗pH传感器,清洗间隔视工况而定,建议清洗方法如下:
■传感器有油膜黏附,使用适当的去污剂清除,例如酒精,丙酮等。石灰或金属氢氧化物黏附,使用3%稀盐酸溶解后再使用清水冲洗干净。硫化物黏附(脱硫烟气或污水处理厂),使用3%稀盐酸和硫脲的混合液清洗后再使用清水冲洗干净。蛋白质黏附(食品行业) , 使用0.5%稀盐酸和饱和胃蛋白酶的混合液清洗后再使用清水冲洗干净。若参比传感器的膜片阻塞,使用锁孔锉去除阻塞物(不适用于CPS11和CPS91传感器)。使用软刷清除ORP铂环上的污染,使用软布清除ORP金针上的污染。ORP传感器严禁使用化学清洗液。人定期两点标定pH传感器,标定间隔视工况而37 pH传感器不允许长期暴露在空气中,需湿润保存。长时间干燥后,建议放在pH= 7的标准液或3mol/l的饱和KCI中1天以上,激活传感器。
友情链接
服务范围
工业自动化产品专业代理,品质保证
技术领先,价格优势,报价迅速,产品全面
技术选型,产品报价,销售安装,工程售后,为您提供工业自动化一站式服务
自动化专业销售
Tel. 19925440503(微信同号) WhatsApp: +86 18576429229
联系工程师
扫码添加WhatsApp
